C R Francis / Architecture
Copyright©: C. R. Francis / Architecture, p.a.  2017   
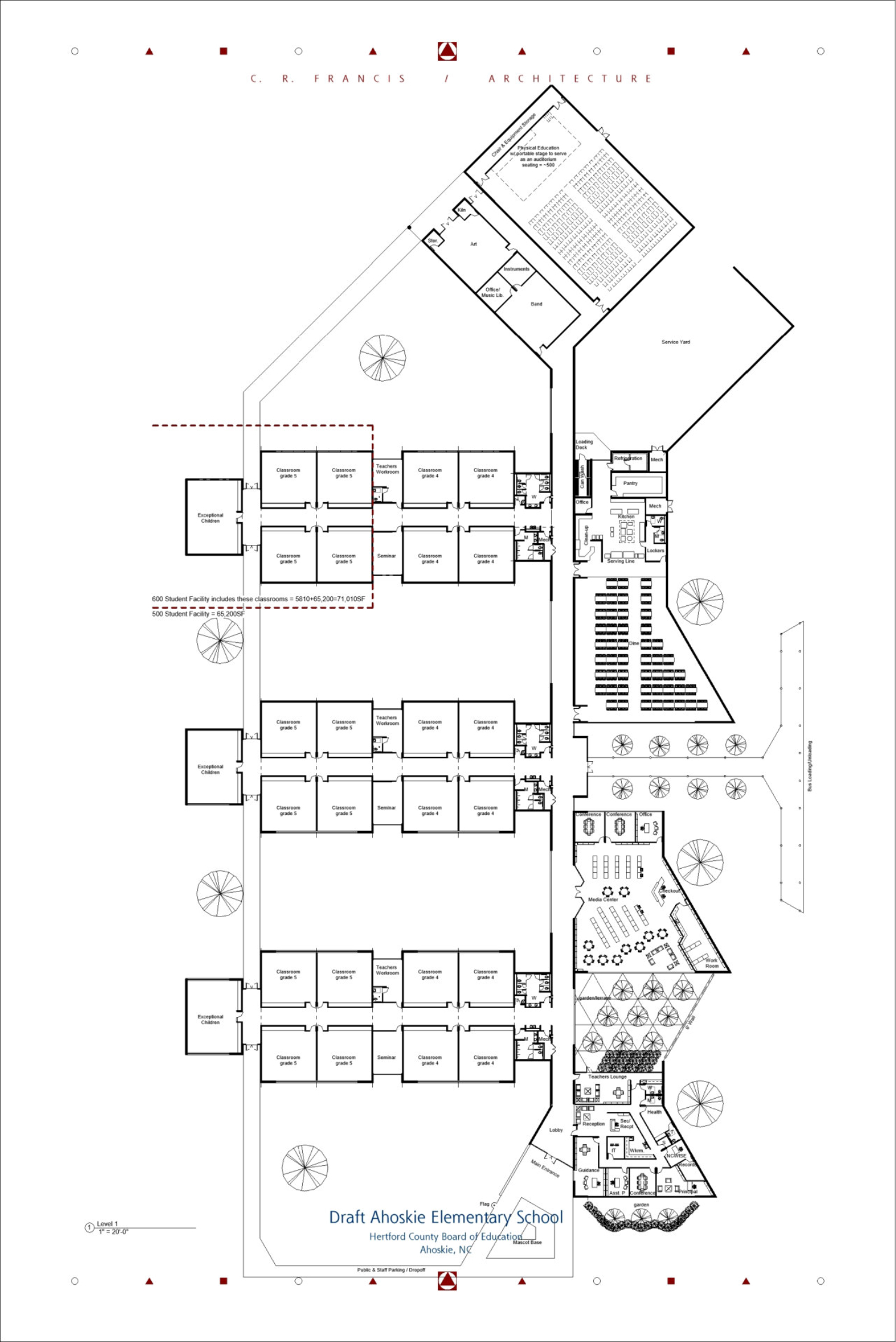
Elementary School Prototype
Area:  71,000 SF Capacity:  600 students Estimated Cost [2017 dollars]:     Classroom Wings:  $135/SF     Support Spine:      $190/SF     Total:   ~$11,600,000 plus site work Structural System:     Classroom Wings:  Pre-engineered metal building systems for structure and roof     Support Spine:  Steel Structure with Pre- engineered metal building purlins and roofing Mechanical System:  high efficiency VRV/VRF heat pump systems
C R Francis / Architecture
Copyright ©: C. R. Francis / Architecture, p.a. 2016
Elementary School Prototype
Area:  71,000 SF Capacity:  600 students Estimated Cost [2017 dollars]:     Classroom Wings:  $135/SF     Support Spine:      $190/SF     Total:   ~$11,600,000 plus site work Structural System:     Classroom Wings:  Pre-engineered metal building systems for structure and roof     Support Spine:  Steel Structure with Pre-engineered metal building purlins and roofing Mechanical System:  high efficiency VRV/VRF heat pump systems